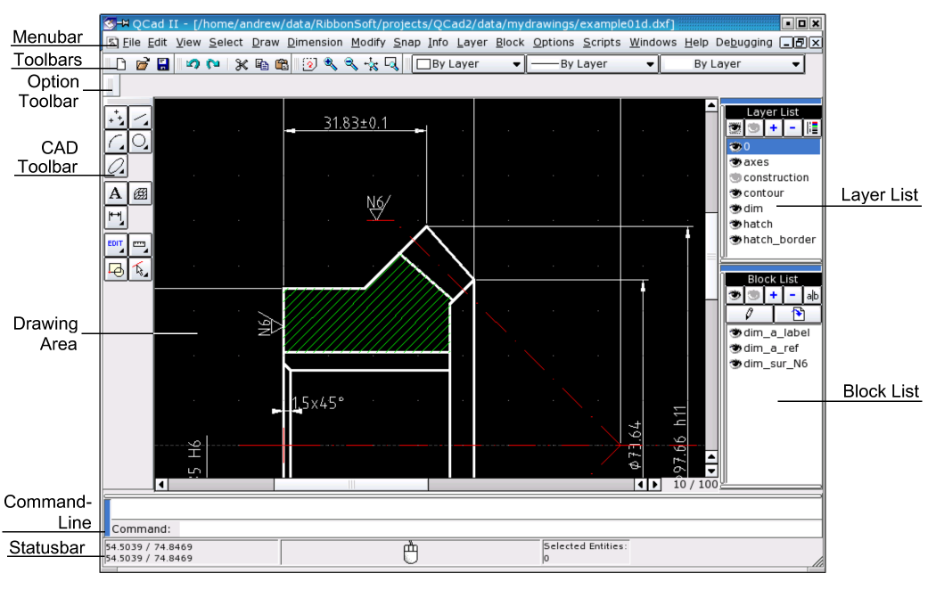
5 Uživatelské rozhraní QCadu
Při spuštění QCadu se otevře hlavní okno programu s
grafickým uživatelským rozhraním. Toto okno je společné všem
výkresům.
Hlavní okno programu
QCad obsahuje grafické uživatelské rozhraní (GUI), které
nabízí spoustu běžných prvků, které můžete znát z jiných programů. V
této kapitole se blíže podíváme na jednotlivé komponenty hlavního
okna programu (Obrázek 8).

Figure 8: Hlavní okno
programu QCad.
Menu a panel nástrojů CADu
Mnoho funkcí QCadu je dostupných z jeho menu. Pro funkce
související s kreslením může být vhodnějším způsobem ovládání pomocí
levého panelu nástrojů CADu. Tento panel nástrojů vždy ukazuje
nástroje, které má smysl v danou chvíli použít. Pokud chcete
například určit počáteční bod úsečky, zobrazí se úchopné funkce,
které vám umožní zadat počáteční bod do existujícího koncového bodu,
do bodu mřížky, nebo umožňují použít jiný úchopný mód.
Seznam hladin a bloků
Napravo od hlavního okna QCadu se nachází seznam hladin a
bloků. Zobrazují hladiny a bloky obsažené v aktivním výkresu.
Pomocí menu
Zobrazit - Podokna - Seznam hladin
a
Zobrazit - Podokna - Seznam bloků
můžete seznamy hladin a bloků zapínat a vypínat.
Stavový řádek
Stavový řádek v dolní části okna QCadu zobrazuje různé
informace o aktuálním stavu QCadu. V jeho levé části se průběžně
zobrazují souřadnice kurzoru - absolutní i relativní - a to jak v
kartézském souřadném systému tak i v polárním. Prostřední oblast
stavového řádku nás informuje aktuální funkci levého a pravého
tlačítka myši. A konečně v pravé části stavového řádku se zobrazuje
počet právě vybraných entit.
Stavový řádek může být pomocí menu
Zobrazit - Stavový řádek
zapnut nebo vypnut.
Příkazový řádek
Přímo nad stavovým řádkem se nachází příkazový řádek
QCadu. Používá se ke vkládání příkazů a zobrazování varovných a
chybových hlášení.
Příkazový řádek může být pomocí menu
Zobrazit - Podokna - Příkazový řádek
zapnut nebo vypnut.
Panel možností
Panel možností je na obrázku 8 prázdný. V
závislosti na právě aktivním nástroji se v něm zobrazují dostupné
možnosti daného nástroje.
Pokud měníte možnosti pomocí příkazového řádku, můžete tuto lištu v
menu
Zobrazit - Nástrojové lišty - Vlastnosti nástroje
vypnout.
Spouštění příkazů
Vše v QCadu je závislé na příkazech, které musí být nejprve
spuštěny. V QCadu existuje spousta způsobů, jak příkazy spouštět:
- výběrem odpovídající ikony v jednom z panelu nástrojů
- výběrem příslušné položky z jednoho z kontextových menu
- zápisem příkazu do příkazového řádku
Nezapomeňte že z menu a panelů nástrojů je možno spouštět
většinu běžných příkazů.
Některé příkazy vyžadují po jejich spuštění zadání dodatečných
informaci. Opět existují tři způsoby jak mohou být tyto informace
QCadem požadovány:
- Dialogová okna. Například nástroj pro tvorbu textových
popisků zobrazí okno, ve kterém je možno vybrat font a zapsat
požadovaný text.
- Panel možností. Například při tvorbě rovnoběžek je
vyžadováno zadání vzdálenosti od původního prvku. V druhé
nástrojové liště se zobrazí textové pole, do kterého může
uživatel zadat požadovanou vzdálenost (viz Obrázek 9).
- Příkazový řádek. Například při kreslení sledu několika čar
můžete tento sled ukončit zapsáním příkazu 'zavřít' do
příkazového řádku.

Figure 9: U
některých nástrojů se může zobrazit zvláštní panel nástrojů.
Režimy
QCad pracuje ve dvou režimech: v
příkazovém režimu
a v
normálním režimu
. Příkazový režim akceptuje příkazy z příkazové řádky. V normálním
režimu jsou veškeré vstupy z klávesnice směřovány do rozhraní programu.
Příkazový režim
Příkazový režim je indikován modrým promptem vlevo u
příkazového řádku a v něm blikajícím kurzorem. V tomto režimu jsou
všechny tisknutelné znaky z klávesnice vkládány do příkazového
řádku. Tento režim použijete pro zadávání příkazů nebo
souřadnic. Můžete například zapsat
úsečka
pro spuštění nástroje pro tvorbu úseček. Pokud stisknete klávesu A
následovanou klávesou Z, objeví se v příkazovém řádku písmena
'az'. Tím se po potvrzení klávesou 'Enter' aktivuje nástroj pro
automatickou změnu měřítka.
Normální režim
V tomto režimu se QCad chová jako každý jiný program. Veškeré
vstupy z klávesnice budou programem interpretovány jako klávesové
zkratky (pokud jsou specifikovány), jinak nebudou mít žádný
efekt. Pokud v tomto režimu stisknete klávesy
AZ
aktivuje se příkaz pro změnu měřítka.
|