O QCAD é um aplicativo de desenho auxiliado por computador em duas dimensões. Com o QCAD é possível criar desenhos técnicos, como plantas de edifícios, interiores, peças mecânicas, ou esquemas.
Capturas de tela
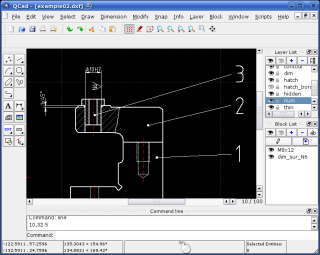
As capturas de tela abaixo mostram a interface do usuário do QCAD em diferentes sistemas operacionais.
|
QCAD no
Windows. |
|
QCAD no
Mac OS X. |
|
QCAD no
Linux / X11. |
Animações
Essas animações demonstram algumas características básicas do QCAD.
|
Camadas e atributos.
|
|
Técnicas de construção.
|
Plataformas suportadas
O QCAD foi testado nas seguintes plataformas:
- Windows 32bit / 64bit XP, 2000, Vista, 7, 8
- Mac OS X 10.6 - 10.8
- Linux 32bit / 64bit
Principais características
- Camadas
- Grupos (blocos)
- 35 fonte de CAD incluídas
- Unidades métricas e inglesas
- Entrada / saída DXF
- Impressão em escala
- Mais de 40 ferramentas de construção
- Mais de 20 ferramentas de modificação
- COnstrução e modificação de pontos, linhas, arcos, círculos, estrias, polilinhas, testos, dimensões, hachuras, preenchimentos, e imagens rastreadas
- Várias ferramentas poderosas de seleção de entidades
- Adesão a objetos
- Ferramentas de medição
- Biblioteca de peças com mais de 4800 itens de CAD
- Interface de script
Downloads
Manual de referência do usuário
![]() |
Manual de referência do usuário(Português)
Version:
|






